Cementerios

Historia

Cementerio de Movera

Movera está situada en la margen izquierda del Ebro, a unos 8 Km. del núcleo urbano de Zaragoza, a cuyo término municipal ha pertenecido siempre. A lo largo de su historia, estrechamente vinculada durante siglos a la rica huerta regada por el sistema de la acequia de Urdán, ha contado con tres cementerios que se han sucedido en el tiempo, situados en distintos emplazamientos.

El primero y más antiguo de ellos parece que ocupó un terreno en el actual Polígono de Malpica, junto al edificio de la que fuera Universidad Laboral. Se llegaba a él desde la antigua ermita del barrio a través del Lugarico de Cerdán, andando por estrechos caminos inaccesibles para los carros.

En 1774 se construye la iglesia antigua, dedicada a Ntra. Sra. de Movera, con el patrocinio del arzobispo Sáenz de Buruaga y simultáneamente debió hacerse el nuevo cementerio, para evitar los enormes problemas que planteaba el anterior por su alejado emplazamiento y difícil acceso. De él tenemos diversas noticias. La primera la dan las Actas de la Visita Pastoral del arzobispo Lezo y Palomeque realizada a la iglesia en 1786 en la que se dice que el Cementerio tiene paredes altas y buena puerta para su custodia. Otra visita pastoral de mediados del siglo XIX, la de 1848, describe el lugar y cuenta las razones de este segundo camposanto: Denominado de Ntra. Sra. de Movera, cuenta (este Barrio) con alcalde pedáneo y su cementerio está unido a la iglesia, construido para evitar las dificultades de acceso y transporte del anterior.

Un escrito de Gregorio Blasco, alcalde de Movera en 1880, en respuesta a una Orden del Gobernador Provincial, proporciona interesantes datos técnicos sobre el mismo. Estaba situado a 5 K. de la población, tenía una extensión de unos 240 m2 y la cerca era de 2 m de altura. De confesión católica, contaba con osario para desahogo, zona para protestantes y pertenecía al Ayuntamiento de Zaragoza que es quien lo administraba. Un informe municipal de 1883, especificaba que estaba bien ventilado, era de reducidas dimensiones y le servían de cerramiento las casas del cura y del sacristán. Poco después, en la década 1890 la documentación refleja con insistencia la falta de idoneidad del ya viejo Cementerio por su poca capacidad y porque no cumplía con las condiciones establecidas por las leyes y normativas de sanidad del momento. Sin embargo, el asunto se queda sin resolver.

A comienzos del siglo XX el notable incremento de la población del barrio ponía de manifiesto la acuciante necesidad de construir un nuevo cementerio por razones de espacio y de buscar un emplazamiento acorde a las normas higiénico-sanitarias en vigor. En 1906 los vecinos ofrecen construirlo con alguna ayuda económica del Ayuntamiento de Zaragoza, que aprueba el 7 de noviembre por acuerdo plenario una consignación a tal fin de 1.000 ptas. con cargo al presupuesto del año siguiente, con las condiciones de que sean los propios vecinos los que lo construyan de acuerdo al proyecto que haga el arquitecto municipal y que el vecindario señale el terreno en el que se situará para que sea inspeccionado por los técnicos municipales. Pero aun habría que esperar unos años para que todos estos planes se pusieran en marcha.

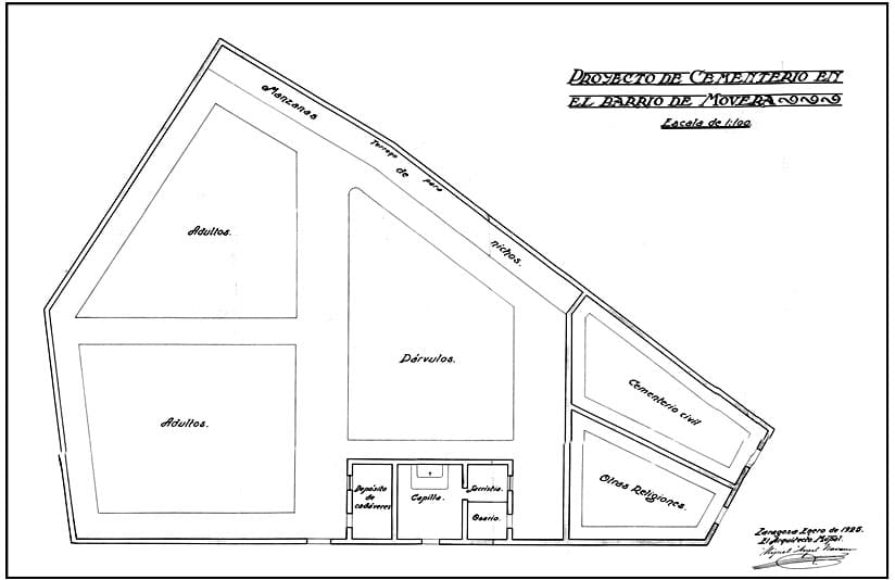
Es en enero de 1925 cuando el arquitecto municipal Miguel Ángel Navarro Pérez presentaba los planos del que sería el tercer cementerio del Barrio de Movera, con un presupuesto de ejecución de 15.000 ptas, una cantidad muy importante. No obstante, las obras ya habían dado comienzo en 1924 en terrenos cedidos a la parroquia por Timoteo Marcellán García, casado con Amalia Landa Lloro, destacado propietario del lugar que cuatro años después compraría el Lugarico de Cerdán al Marqués de Ayerbe.

Galería de imágenes: 1 de 3
Galería de imágenes: 2 de 3
Galería de imágenes: 3 de 3

El Ayuntamiento de Zaragoza en abril de 1926 aprobaba definitivamente la subvención de 1.000 ptas., exigua cantidad comparada con el presupuesto del arquitecto pero sí igual a la concedida a otros barrios; el vecindario se ocuparía de su construcción, como estaba previsto. De hecho, el 26 de noviembre de este mismo año se llevaba a cabo la inhumación de Julián Poderós, la primera del nuevo camposanto.

Pocos días después, el 6 de diciembre, tenía lugar la solemne inauguración y bendición del tercer Cementerio de Movera de la que la prensa local ofrece minuciosa descripción. Era entonces alcalde pedáneo Simón Campodarve y párroco Leonardo Olivera; ambos junto con el médico Félix Ruiz encabezaban la Junta de Obras del Cementerio que explicaría a las autoridades asistentes y a los destacados propietarios del lugar que la construcción del Cementerio había sido posible gracias al esfuerzo y colaboración de todos. Ni un solo vecino había dejado de aportar su concurso, en cuota metálica o en jornales, gracias a lo cual una obra de 15.000 ptas. se había podido ejecutar con la subvención municipal de 1.000 ptas. y la de la Diputación Provincial, de 100 ptas, mereciendo destacarse la colaboración de Timoneo Marcellán que había cedido los terrenos gratuitamente. La prensa destacaba también la de Ignacia Bosqued que había ofrecido construir una capilla.

El nuevo cementerio satisface - reconocía la prensa- las necesidades del barrio por su situación y capacidad. Esta cercado por sólida tapia y cierre de artística reja. Cuenta con Deposito de Cadáveres provisto de mesa para las autopsias y al otro lado de éste, se sitúa el Cementerio Civil.

Con el tiempo, alguna duda debió surgir acerca de la titularidad del Cementerio. Según un acta notarial de 28 de septiembre de 1924, la donación de Marcellán se hace a la parroquia y más adelante un acuerdo municipal de 29 de abril 1929 reconoce que los terrenos pertenecen a la parroquia.

Pero un escrito del donante del terreno de 5 de junio de este mismo año puntualiza que la cesión se hacía a la parroquia entendida como el conjunto del vecindario, y solicitaba a la vez al alcalde de Zaragoza hacer la oportuna escritura de cesión al Ayuntamiento de la ciudad del que depende el Barrio de Movera, nombrando a su vez la junta administrativa encargada del cuidado y administración del camposanto.

Pocos días después el 25 de junio se designaba al notario Ignacio Ansuategui para hacer la escritura de cesión del Cementerio de Movera por Timoteo Marcellán, dueño de la Torre del Castillo y residente en Zaragoza, al Ayuntamiento de esta ciudad. No obstante, no aparece en la documentación municipal consultada esa escritura notarial de cesión al Ayuntamiento de Zaragoza, o no se llegó a hacer, a la vista de las noticias posteriores.

De hecho, el 3 de agosto de 1929 el arzobispo de Zaragoza aprobaba el Reglamento del Cementerio Parroquial de Movera (Extramuros de Zaragoza) determinando su funcionamiento y la Comisión o Junta encargada de la Administración del mismo, compuesta por cinco miembros vecinos del lugar (uno de ellos Tesorero y el otro Secretario), presididos por el párroco.

El tercer Cementerio de Movera continuaba su andadura, y el paso de los años y el aumento progresivo de su población plantearon otra vez nuevas necesidades de espacio para inhumaciones. En 1995 se compraban dos terrenos que se anexionaban al Cementerio como ampliación del propio espacio interior, consiguiendo las dimensiones que tiene en la actualidad, y también espacio exterior para estacionamiento de vehículos. Las obras fueron ejecutadas por el Barrio, completándose el cerramiento del recinto y nuevas edificaciones de capillas y manzanas de nichos. La junta parroquial formada por vecinos y presidida por el párroco sigue ocupándose de su administración y gestión.

Descripción

Situado al SE de los núcleos de población del barrio, el Cementerio de Movera, con una orientación N-S, ofrece una forma un tanto irregular, resultado de la ampliación realizada a partir de 1995 sobre el camposanto de 1926, cuya planta original pervive y se aprecia claramente en el trazado del conjunto actual.

La entrada se realiza por el Norte, en el lado menor de ese polígono irregular que casi recuerda un triángulo. Se accede al recinto por una sencilla puerta en arco, con cierres de hierro, sobre el que se sitúa un lápida que recuerda al visitante la colaboración del barrio entero en la construcción del mismo: La parroquia entera preparó con cariño esta mansión para sus muertos. Año 1926. El perímetro de la parte antigua de este cementerio pervive en la cerca de mampuesto y tejaroz, recrecida en alguna zona, que continúa en el interior en el lateral último de la zona de capillas y en la trasera de las dos capillas panteones.

Poco ha perdurado de la disposición original proyectada por Miguel Angel Navarro en 1924, a excepción de la manzana de nichos del lado Oeste, y de la cerca ejecutada de manera más sencilla incluso en la portada ya descrita. Tampoco se debió ejecutar el edificio destinado a Capilla, con su sacristía; seguramente por razones económicas; recuérdese el alto presupuesto presentado por el arquitecto municipal. En todo caso, alguno de los elementos construidos inicialmente, como el Deposito de Cadáveres que se situaría en el lado Este y el Cementerio Civil, se fueron sustituyendo paulatinamente por edificaciones más modernas; algunas de ellas, como las manzanas de nichos laterales cobijadas por elegantes arquerías de medio punto, se ejecutaron en ladrillo en la línea de las edificadas en el Cementerio de Torrero en los años 30, 40 y 50, o las capillas panteón, en cuyo lateral se sitúa en un pequeño rincón el Monumento a todos los Caídos (1936-1939).

La ampliación de 1995 incrementó considerablemente el recinto del camposanto que hoy se acerca a los 5.000 m2, a aparte del espacio exterior incorporado a la propiedad y destinado a cómodo estacionamiento de vehículos.

En la espaciosa zona interior del recinto, totalmente cercada se han construido tres manzanas de 10 capillas cada una y otras dos de nichos de carácter funcional, quedando amplio espacio todavía para nuevas edificaciones.

Galería de imágenes: 1 de 3
Galería de imágenes: 2 de 3
Galería de imágenes: 3 de 3

Fuentes documentales

  • Archivo Diocesano de Zaragoza
  • Archivo Municipal de Zaragoza

Bibliografía

  • ADIEGO ADIEGO, E. y otros: Zaragoza. Barrio a barrio, vol. 4. Zaragoza 1984.
  • CORONA, I. y otros: Zaragoza. Barrio a Barrio. Ed. Prensa Diaria Aragonesa S.A. Zaragoza 1992.
  • GARCÍA MENÉNDEZ, B.: “Barrios de Zaragoza. Movera” en Heraldo de Aragón, 09.08.1925.
  • HERALDO DE ARAGÓN: “Movera inaugura un nuevo cementerio y aspira a otras mejores urbanas”. 07.12.1926.
  • MADOZ IBAÑEZ, P.: Diccionario geográfico-estadístico-histórico de España y sus posesiones de ultramar. Vol. 9: Zaragoza. Madrid 1845.
  • PARROQUIA de Ntra. Sra. de Movera. Página Web
  • PÉREZ VITALLER, A.: Movera, su historia y sus gentes. Página Web
  • RODRIGO ESTEVAN, Mª L.: ”Barrios rurales de la ciudad de Zaragoza” en BELTRÁN MARTÍNEZ, A.: Zaragoza. Calles con historia. Ed. Prensa Diaria Aragonesa, S. A. Zaragoza 1999.

Texto redactado por:
Mª Isabel Oliván Jarque. Patrimonio Cultural Urbanístico