El ANTIGUO MERCADO DE PESCADOS. HOY TEATRO DEL MERCADO
INTRODUCCIÓN
Desde mediados del siglo XIX hasta los primeros años del siglo XX la venta del pescado fresco en Zaragoza se realizaba en varias plazas o lugares en los que habitualmente había mercadillos de puestos al aire libre. “El fresco”, que así se le denominaba comúnmente, se vendía en el espacio de las Piedras del Coso, en la plaza de San Lamberto, en la del Pilar y en la de San Pablo y en algún puesto en la zona inmediata a la plaza del Mercado Central desde la calle Casta Alvarez hasta los porches, y siempre en puestos al aire libre que no reunían las condiciones higiénicas adecuadas. Si bien en 1918 se pensó construir un despacho central de pescado en la planta baja del nuevo mercado inaugurado en 1903, la idea no cuajó por el deseo de los comerciantes de tener una instalación adecuada en la que se centralizara la venta al por mayor y que contara con instalaciones frigoríficas que permitieran la conservación del pescado sobrante de un día para otro.
UN MERCADO DE MAYORISTAS DE PESCADOS PARA ZARAGOZA
En 1920 el Ayuntamiento acordaba la construcción de un pequeño mercado destinado a la venta del pescado, barajándose diversas ubicaciones para su construcción: la desaparecida plaza de San Antonio Abad, la de Salamero, la de San Felipe, la de Huesca (antigua) y la del Justicia. Finalmente y tras sopesar las ventajas e inconvenientes de unas y otras, el Consistorio optó por la antigua plaza de Huesca, situada entonces junto al Torreón de la Zuda, histórico edificio cuya arquitectura habría que tener en cuenta para armonizar con ésta la de la nueva construcción. El arquitecto Municipal Miguel Ángel Navarro Pérez (1883-1956) sería el encargado de la redacción del proyecto y de la dirección de las obras del mercado de pescados. Sin embargo, el emplazamiento fue desechado, formulándose en agosto de 1926 el Pliego de Condiciones del proyecto para la subasta pública de las obras a ejecutar en la Plaza de la Libertad, hoy plaza de Santo Domingo, quedando estipulada la construcción en 180.000 ptas., obras adjudicadas el 31 de diciembre de 1926 a Domingo Ferrer
El nuevo proyecto para la plaza de la Libertad era básicamente el mismo que el que había hecho para la plaza de Huesca con algunas modificaciones de adaptación al nuevo emplazamiento, fundamentalmente, y también en lo ornamental, en función de que iba a estar su puerta principal frente al Antiguo Ayuntamiento situado en el nº 15 de esa plaza. Es más, se había pensado incluso en reutilizar la portada de un edificio histórico de la ciudad, el de la Aduana Vieja situado en la calle Palafox, - entonces dedicado a Retén de Bomberos - para la entrada del nuevo mercado. Su mal estado hizo desistir de la idea diseñándose otras portadas entre las que se seleccionó la que se ejecutó finalmente. El 15 de mayo de 1928 las obras estaban acabadas, inaugurándose el Mercado de Pescados el día 23 de enero de 1929, fecha que coincidía con el segundo aniversario en la alcaldía de Miguel Allué Salvador.
De planta rectangular de tipo basilical y pequeñas dimensiones, contaba – y cuenta - con columnas de fundición, de inspiración renacentista, anilladas con fuste liso y capitel jónico, zapata de ménsulas decoradas con elementos vegetales, realizadas en la Fundición Averly, elementos que dividían el espacio en tres naves longitudinalmente y constaba de semisótano y planta baja con una estructura simétrica respecto a los dos ejes del rectángulo.
El edificio, construido en ladrillo caravista, se alzaba sobre un semisótano a modo de zócalo, de piedra sillar de la Puebla de Albortón, con acceso por los lados cortos del rectángulo. En el lado Norte, se accedía por una escalinata articulada con un gran arco en piedra, mientras que en el lado Sur, se situaba el andén de carga y descarga. Series de arquerías de medio punto ordenaban y articulaban la armoniosa composición de sus fachadas.
Se trataba de un edificio compacto y con un volumen escalonado. Un cuerpo central rectangular se elevaba sobre la cubierta sirviendo para iluminación del espacio central de mayor altura. La cubierta era de teja curva y contaba con un gran alero de madera también de inspiración renacentista.
Si bien la edificación respondía a planteamientos funcionales con un programa de usos moderno y completo, las arquerías de medio punto y los aleros obedecen a la influencia de la arquitectura tradicional renacentista, lenguaje historicista en el que Navarro se sintió especialmente cómodo, sin olvidar que el proyecto de este edificio era una modificación del realizado para la plaza de Huesca en cuyo estilo tenía que tener en cuenta el del vecino Torreón de la Zuda.
El viejo Mercado de Pescados se quedó sin uso en los años 50 pasando a convertirse sus espacios en almacenes municipales, sustituido en sus funciones por el nuevo de la avenida de Navarra. Después en el año 1961 se usará como ampliación de las oficinas municipales, dada su proximidad a la antigua Casa Consistorial. En los años 70 se pensó en dar un uso concreto al edificio, proyectándose entre 1976 y 1979 su adaptación para Biblioteca Central de la Ciudad, según un programa planteado por la dirección de la Biblioteca Miguel Artigas, en el que se sumaría la recuperación y uso de un edificio de la ciudad de calidad arquitectónica y dotar a la zona de un equipamiento cultural, escasos en la misma en esos momentos. El proyecto fue redactado por el jefe del Servicio de Edificación Municipal Augusto García Edgar, pero no se llegó a ejecutar, pues el Consistorio pensaba en construir una Biblioteca Central con mayor capacidad y mayor dotación de fondos, pasando el viejo Mercado de Pescados a almacén y oficinas del Alumbrado Público, manteniéndose en este uso hasta 1981. A lo largo de estos años, e incluso antes, el edificio fue sufriendo pequeñas transformaciones, incluso compartimentaciones espaciales en las naves laterales; manteniéndose, no obstante, su estructura.
DE MERCADO A TEATRO. UN CAMBIO DE USO LLENO DE POSIBILIDADES
Medio siglo después de que abriera sus puertas el mercado, las nuevas demandas sociales iban a proporcionar un futuro diferente a este edificio de buena arquitectura y excelente ejecución. Fue la demanda de los grupos de teatro locales de un espacio para actividades teatrales alternativas y especialmente las propuestas del “Teatro de la Ribera” las que llevaron al arquitecto Daniel Olano a estudiar y valorar las posibilidades de este edificio para tal uso, llevando la propuesta al consistorio junto con ese grupo teatral y el apoyo del Departamento de Arte de la Universidad de Zaragoza. La propuesta fue aprobada y el Ayuntamiento designó a Olano para la redacción del proyecto de rehabilitación y adaptación del edificio para centro cultural polivalente y escenario las actividades teatrales de tipo alternativo y experimental, espectáculos minoritarios que no tenían acogida en el Teatro Principal. Con ello se conseguía, además, un importante paso en la política de descentralización cultural, en la recuperación de los edificios históricos que se iban quedando sin uso y en la rehabilitación del Casco Histórico y, en concreto, del degradado barrio de San Pablo.
Las obras comenzaron en 1982 y el nuevo teatro fue inaugurado el 23 de abril de 1983, completado con un escenario exterior al aire libre que sería reformado posteriormente.
El edificio se respetó al máximo, manteniendo su aspecto original. El exterior fue minuciosa y respetuosamente restaurado. Se limpiaron las fachadas manteniendo el color y pátina que adquiere el ladrillo con el paso de los años, se consolidó y restauró el alero, y se sustituyó la estructura de viguetas metálicas de la cubierta original por su mal estado, reponiéndose las tejas originales en la nueva.
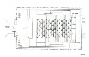
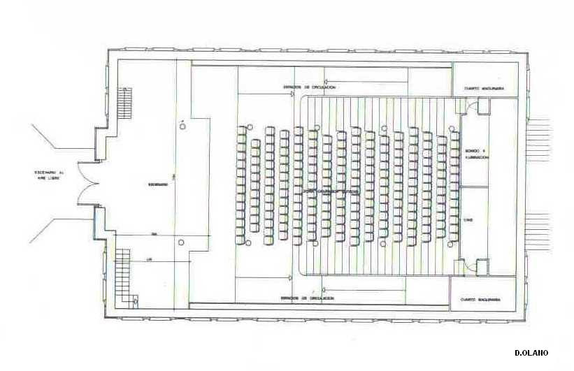
Se modificó la orientación del edificio por razones funcionales, pasando el testero del edificio a ser el acceso para el publico al teatro y la entrada al antiguo mercado es la que daba acceso ahora al escenario; por medio de un muelle se facilita la carga y descarga del material escénico.
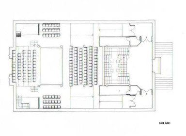
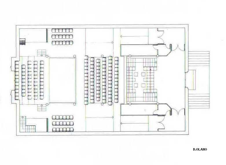
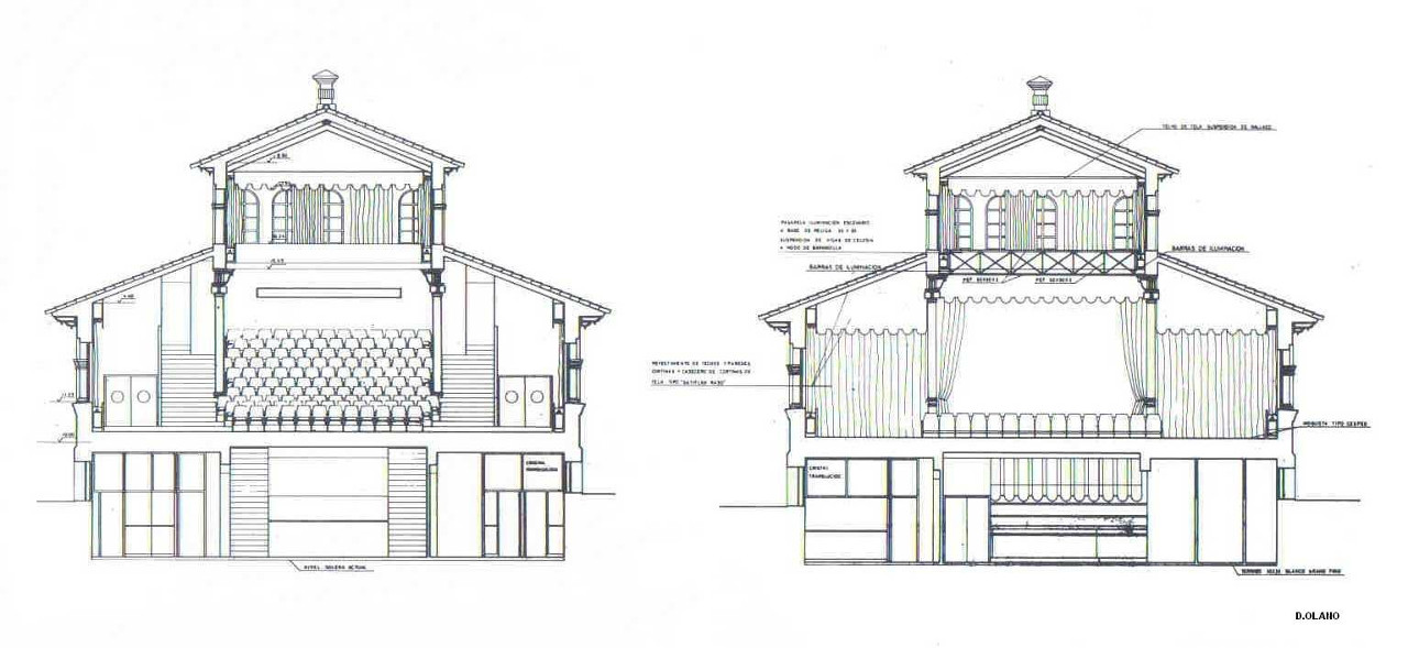
Se respetó y conservó la estructura original. El espacio teatral propiamente dicho está configurado por las tres naves separadas por las hermosas columnas de fundición de Averly, destinada la central a patio de butacas con unas 210 localidades con un lucernario a doble altura y suelo en plano inclinado por razones de visibilidad, quedando la parte inferior de estas por debajo del patio de butacas; las naves laterales son el espacio para comunicación y circulación de asistentes o espectadores.
Todo el interior está entelado, creando un efecto diferente e ilusorio inspirado en las carpas de los comediantes de comienzos de siglo y en ejemplos más próximos de la ciudad como el Teatro Pignatelli o el Teatro Circo. Este tipo de decoración del espacio a base de cortinas creaba una iluminación mágica y diferente a la vez que permitía el uso de la luz natural cuando la sala se usase como espacio polivalente, evitando también la reverberación del sonido. Además se logró un máximo aprovechamiento espacial para todo tipo de instalaciones y usos, colocándose en el semisótano las zonas de servicios del edificio: espacio-almacén, estudio-biblioteca, servicios para el público, camerinos, servicios para artistas, etc.
Al exterior del edificio, en la parte norte (antigua entrada del mercado y ahora escenario) se situó otro escenario al aire libre a modo de quiosco de música, con su graderío que no llegó a ejecutarse, lo mismo que la reestructuración de la plaza que completaba la recuperación del edificio, con varios espacios articulados, cada uno con sus rasgos característicos, con recorridos que generaban perspectivas dinámicas encaminadas a reforzar la identidad del espacio central.
UN TEATRO DE PROXIMIDAD
A comienzos del año 2009 se llevan a cabo las obras de Restauración de fachadas y cubiertas y decoración interior del Teatro del Mercado, proyectadas y dirigidas por la arquitecto municipal Úrsula Heredia. El edificio estaba en mal estado desde hacía unos años, situación de deterioro que había denunciado hacía un tiempo la Junta del Casco Histórico, demandando la necesidad de inversión en este equipamiento municipal para que pudiera seguir cumpliendo los objetivos planteados a la hora de su conversión en teatro, e impulsor de la actividad cultural en la zona. En las obras se consolidaron los cimientos, se restauraron las fachadas y el alero, se revisaron y retejaron las cubiertas, se llevó a cabo la rehabilitación interior con la adecuación y reforma de dependencias, despachos, archivo, taquilla, vestuarios, aseos…Así mismo se rehabilitó la sala, se hicieron nuevos la decoración, acabados, pavimentos y se sustituyeron los textiles incluyendo el retapizado de butacas, además de diversas actuaciones a solicitud de la dirección técnica del teatro, así como las instalaciones eléctricas, climatización y escenografía con su iluminación.
Todas estas obras finalizaban en junio de 2010 y habían sido ejecutadas con cargo a las partidas presupuestarias del Fondo Estatal de Inversión Local, dentro del Plan Español de estímulo a la economía y empleo. El Teatro del Mercado reabría su escenario con la obra “Mercado Libre” de Luís Araujo que había obtenido el Premio Esperpento 2008 de Textos Teatrales, retomando así su ya habitual actividad cultural en el Barrio de San Pablo.
FUENTES:
Archivo y Hemeroteca municipalFOTOGRAFÍAS:
Archivo Municipal, Gabinete de Prensa y Unidad de P.H.A.BIBLIOGRAFÍA:
- FÉLEZ, FORCADA, LUESMA y TUDELILLA: “Rehabilitación del Mercado de Pescados pata teatro del Mercado” en Actas del IV Coloquio de Arte Aragonés. Zaragoza 1986.
- GÓMEZ VALCARCEL, D.: “Reforma del Mercado de Pescados” en Arquitectura Viva nº 4, 1989.
- HEREDIA LAGUNAS, U: Teatro del Mercado. Un Teatro de proximidad. Zaragoza. Junio de 010
- JIMÉNEZ ZORZO, F.J.: La industrialización en Aragón. La Fundición Averly de Zaragoza. Zaragoza.
- LABORDA YNEVA, J.: Zaragoza. Guía de Arquitectura. Zaragoza 1995.
- MARTÍNEZ VERÓN, Jesús: Arquitectura aragonesa: 1885-1920.Ante el umbral de la modernidad. Zaragoza 1993.
- OLANO PÉREZ, D.; “Rehabilitación del antiguo Mercado de Pescados para Teatro” en Rv Aldaba nº 5. Zaragoza 1985.
- RÁBANOS FACI, C.: “Historia crítica de la arquitectura aragonesa del Siglo XX. I.” en Rv. S.A.A. nº XLVII. Zaragoza 1995.
- VVAA: Guía Histórico Artística de Zaragoza. Zaragoza










