El acondicionamiento del canal se realiza mediante sección trapecial de las mismas dimensiones que la existente sobre la Ronda de la Hispanidad; es decir 4 m. en base y 7 m. en coronación, formada por relleno de material impermeable "arcilloso" con espesores mínimos de 50 cm. Previa a la extensión del material impermeable se realizará la apertura de la caja mediante excavación o relleno según perfiles transversales.
A ambos lados del canal, se proyectan dos paseos ejecutados con 10 cm. de arena de machaqueosobre una base de zahorra natural de 15 cm. de espesor. El ancho de estos paseos será de 4 m. en la margen izquierda del Canal y 4 ó 6 m. en la margen derecha según sección tipo. A ambos lados de los paseos se completa la banqueta con zonas verdes entre el paseo y el límite de la banqueta.

En la zona que limita con el muro de cal y canto se sustituye el árido de machaqueo por un pavimento de baldosa de terrazo de 40 x 40 x 3,5 cm. similar al existente sobre la Ronda de la Hispanidad.
Ampliar imagen (en ventana nueva)
Ampliar imagen (en ventana nueva)
Para facilitar el acceso peatonal de la zona urbana colindante ?Barrio de la Paz? a la margen izquierda del Canal se proyecta la sustitución de la pasarela existente por otra de menor longitud construida en madera.
Ampliar imagen (en ventana nueva)

Por último, las conexiones con el Canal, con objeto de dar continuidad a la lámina de agua, se realiza entrando en el meandro que hacía el cauce antiguo sin interrupción visual y saliendo de la misma forma. De modo que puede seguirse su trayecto histórico con su recorrido hidráulico y la estética del agua, elementos flotantes, hojas, patos,... a la velocidad de paseo de 0,5 m/s.
De esta forma, el agua entrará libremente sin restricción de sección al cauce antiguo mediante un canal rectangular de hormigón armado que continúa con un marco también de hormigón armado con objeto de permitir el paso de vehículos de urgencia o mantenimiento a través del camino de margen derecha del Canal.
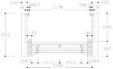
Las dimensiones del Canal serán de 4 m. de base y una altura libre de 1 m. que permiten un calado de 0,80 m. Se realizará una transición de 5 m. de longitud de esta sección a la sección ataluzada de paredes 2V:3H y se protegerán con barandilla de madera similar a la existente, las embocaduras, las losas y conexiones.
A ambos lados del nuevo Canal se dispone una hilera de arbolado de distinto porte que dividirá el cauce del Canal del paseo. La delimitación entre el material arcilloso, paseo y zonas verdes se realiza con bordillo prefabricado de hormigón de 8x20 cm.
Ampliar imagen (en ventana nueva)
Se proyectan barandillas de madera en los límites del Canal con los paseos pavimentados y una pequeña barandilla metálica disuasoria en el límite del paseo con el Canal. También se colocará barandilla de madera en el límite de la bancada del Canal con los taludes de los espacios inferiores. Solamente se permitirá el acceso de vehículos de mantenimiento y acceso a fincas.
En las zonas verdes de la banqueta se dispone césped y vegetación tapizante salpicada con diferentes especies arbustivas, definidas en el plano de plantaciones. Por último, se completa la urbanización de la calle Alhama de Aragón con la prolongación de la acera existente hasta el límite de la misma en su encuentro con la calle Moyano. Se proyectan igualmente redes de riego y alumbrado público que se describen en su apartado correspondiente.