Arranca un plan especial de limpieza en los entornos de Zamoray-Pignatelli y el de Plaza San Agustín-Centro de Historias
31 mayo 2024
El Ayuntamiento de Zaragoza, a través del área de Medio Ambiente y Movilidad, inicia mañana sábado, día 1 de junio, un plan especial permanente de limpieza, con refuerzos todos los días de la semana, en dos entornos específicos de Zaragoza: Zamoray – Pignatelli y la Plaza de San Agustín – Centro de Historias.
Esta iniciativa reforzará el trabajo que ya se viene haciendo por parte del Servicio de Limpieza en estas zonas, en las que se ha detectado una problemática específica protagonizada por presencia de bolsas y residuos fuera de los cubos normalizados o dejadas fuera de horario autorizado; recogida de los cubos de las comunidades, que muchas veces no se realiza; restos en el suelo propiciados por actitudes incívicas; muebles y enseres abandonados sin aviso previo al servicio 010; pintadas, grafitis, etcétera.
Este plan especial, que supondrá un coste extra hasta el 31 de diciembre de 150.000 euros, ha sido presentado hoy a los medios por la consejera de Medio Ambiente y Movilidad, Tatiana Gaudes, y el presidente de la Junta de Distrito de Casco Histórico, Armando Martínez Pérez.
La consejera ha destacado "el trabajo que, de manera transversal, se está llevando a cabo desde el Gobierno de Zaragoza en este entorno, tanto en materia de limpieza como de seguridad o urbanística". Gaudes ha recordado que "no podemos permanecer ajenos a la problemática social que se vive en distintas zonas de la ciudad, aunque por otro lado debemos impulsar todo lo que esté en nuestra mano para mejorar la convivencia y el civismo".

DISTRIBUCIÓN DE LOS EQUIPOS
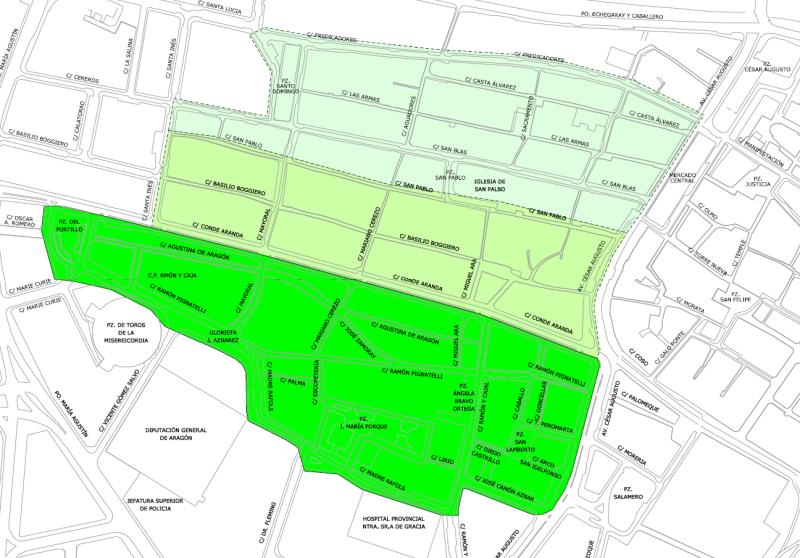
En el entorno de Zamoray – Pignatelli, habrá una zona prioritaria de actuación, delimitada por las calles Conde Aranda y Madre Rafols, aunque se extenderá complementariamente hasta Predicadores.
De lunes a sábado, dicho entorno contará en horario de mañana con:
- Un equipo de limpieza y recogida de residuos y enseres, compuesto por dos personas, dotados de un vehículo con caja cerrada 10 m³ con plataforma, que actuaría en días alternos (en las jornadas en las que presta sus servicios en la zona el equipo ordinario de barrido dual).
- Un equipo de limpieza de pintadas y manchas en el pavimento compuesto por dos personas y furgón hidrolimpiador de agua caliente, que actuaría el resto de los días (en las jornadas en las que se atiende la zona con el servicio de Barrido Manual Individual), con el mismo personal asignado al equipo anterior.
Los domingos y festivos, en Zamoray – Pignatelli actuarán:
- Un equipo de limpieza y recogida de residuos y enseres, con dos operarios y vehículo con caja cerrada 10 m³ con plataforma.
- Un equipo de limpieza de pintadas y manchas similar al anteriormente citado.
Se ha previsto, asimismo, que todos los días se pueda hacer un último repaso en horario de tarde al entorno de la calle Zamoray.

En cuanto San Agustín y Centro de Historias, de lunes a viernes y en turno de tarde:
- Un equipo de barrido de repaso, con dos operarios y vehículo con caja cerrada 10 m³ con plataforma.
Y en domingos y festivos, también por la tarde:
- Un equipo de barrido de repaso similar al citado anteriormente.


