El Ayuntamiento adjudica por 460.887 euros la conversión del IES Luis Buñuel en un Centro de Mayores
19 octubre 2023
El Gobierno de Zaragoza aprobará en su próxima reunión la adjudicación de las obras de adecuación del antiguo instituto Luis Buñuel para convertirlo en un Centro de Convivencias de Mayores por un importe de 460.887 euros (IVA incluido).
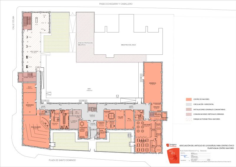
Así lo ha indicado hoy la alcaldesa de Zaragoza, Natalia Chueca, quien ha visitado el edificio y ha presentado el proyecto a un nutrido grupo de vecinos del barrio. La primera fase del futuro centro cívico del Casco Histórico se destinará a un centro de mayores y se ubicará en la planta baja, que cuenta con una superficie de 1.722 metros cuadrados.
La empresa Construcciones Rubio Morte será la empresa encargada de ejecutar los trabajos, que comenzarán antes de que finalice el año y tendrán una duración aproximada de cuatro meses.

Esta será la primera fase de un proyecto que contempla convertir este histórico edificio ubicado en el distrito del Casco Histórico en un Centro Cívico abierto y recuperado para toda la ciudadanía, después de que los tribunales anularan el acuerdo de cesión a la asociación ocupante y ordenara su desalojo el pasado mes de febrero.

La alcaldesa Natalia Chueca ha recordado que, tras ser desocupado, Urbanismo realizó una inspección del estado del inmueble, donde se acumulaba una gran cantidad de basuras, residuos y enseres en grandes cantidades que suponían un serio riesgo de incendio. Ante esta situación, el Ayuntamiento de Zaragoza, para garantizar la salubridad del edificio, realizó una retirada de emergencia de todos los residuos y una limpieza en profundidad, incluida la desratización, que ha supuesto a las arcas municipales un coste de 183. 645 euros.

Ahora, una vez limpiado el edificio y con la adjudicación de las obras, el Ayuntamiento continúa dando pasos para cumplir una demanda histórica ante la falta de equipamiento público en esta zona, recuperando este edificio para todos los colectivos, entidades, asociaciones, y vecinos que van a poder participar de la misma forma que lo hacen en cualquier barrio de la ciudad.

Esta propuesta contempla la creación de un comedor, con una superficie de 58 metros cuadrados y una cafetería de 64 metros cuadrados donde ahora se ubica la sala Azul y la antigua vivienda del conserje, además de un área de administración (55 metros cuadrados) que se situará en la zona de la entrada y un salón de actos de 207 metros cuadrados, a los que se suman los vestuarios y un almacén. El comedor tendrá un aforo de 48 plazas al día. El futuro centro de mayores dispondrá también de cuatro aulas para la realización de clases y talleres, una de ellas será una sala dinámica con más de 100 metros cuadrados. Las obras de esta primera fase consistirán en la adecuación del interior de la planta baja para lo que será necesario demoler forjados y tabiques y construir de nuevo el espacio. Casi todas las instalaciones interiores, así como la carpintería serán nuevas en la mayor parte de los casos, mientras que se rehabilitarán los exteriores. El centro de mayores será la primera fase de un proyecto que contempla la construcción de un centro cívico después de que el Área de Participación y Régimen Interior realizara un estudio sobre las necesidades de un equipamiento municipal de estas características a partir de las propuestas de distintos servicios. Este edificio cuenta además con un patio de 1.446 metros cuadrados útiles para la realización de actividades al aire libre, y un espacio exterior cubierto de 271 metros cuadrados en la alineación de la calle Celma.
Limpieza y desratización
El inmueble fue sometido a una limpieza en profundidad que supuso un coste de 183.645 euros a las arcas municipales. Tras el desalojo, el pasado mes de febrero, el Servicio de Inspección Urbanística realizó una visita el 28 de marzo tras la cual emitió un informe donde se concluía que el edificio y el patio exterior albergaba todo tipo de residuos en grandes cantidades, desde "basuras, plásticos, plásticos, cartones, libros, antiguo mobiliario de madera, colchones de espuma, telas, etc, además de ratas".
Todo ello suponía, "por su naturaleza y su cantidad, un potencial riesgo de incendio por la carga al fuego que supone en un edificio desocupado", según indicaron los técnicos municipales. De esta manera, se ordenó, "en aras de la salubridad y la seguridad, proceder con carácter de emergencia a la retirada y limpieza de todo tipo de residuos del interior del edificio y a la desratización y desinsectación del mismo". De este modo, el Servicio de Salud Pública del Ayuntamiento de Zaragoza empleó un primer tratamiento contra roedores el 29 de marzo y un segundo el 5 de abril, dando por finalizada la actuación siete días después.
Por otra parte, el Área de Urbanismo se encargó de las obras de limpieza por emergencia, cuya mayor cuantía, más de 98.200 euros, se destinó a las labores de "recogida por medios manuales de todo tipo de basuras y desechos, mobiliario de todo tipo, electrodomésticos, aparatos sanitarios sueltos, cristales rotos, excrementos, etc, incluso barrido carga y transporte manual hasta el vaso contenedor", todo ello "en un estado de insalubridad en el interior del edificio", tal y como recoge la propia certificación de las labores.
El resto de tareas, hasta alcanzar los 183.645 euros que costó el conjunto de los trabajos, consistió en la demolición de falsos techos en malas condiciones, la instalación de una bajante para los escombros, la recogida de enseres y basura en el patio exterior, las tasas de vertederos y las medidas de seguridad y salud laboral.

